Situation idéale à Avranches !
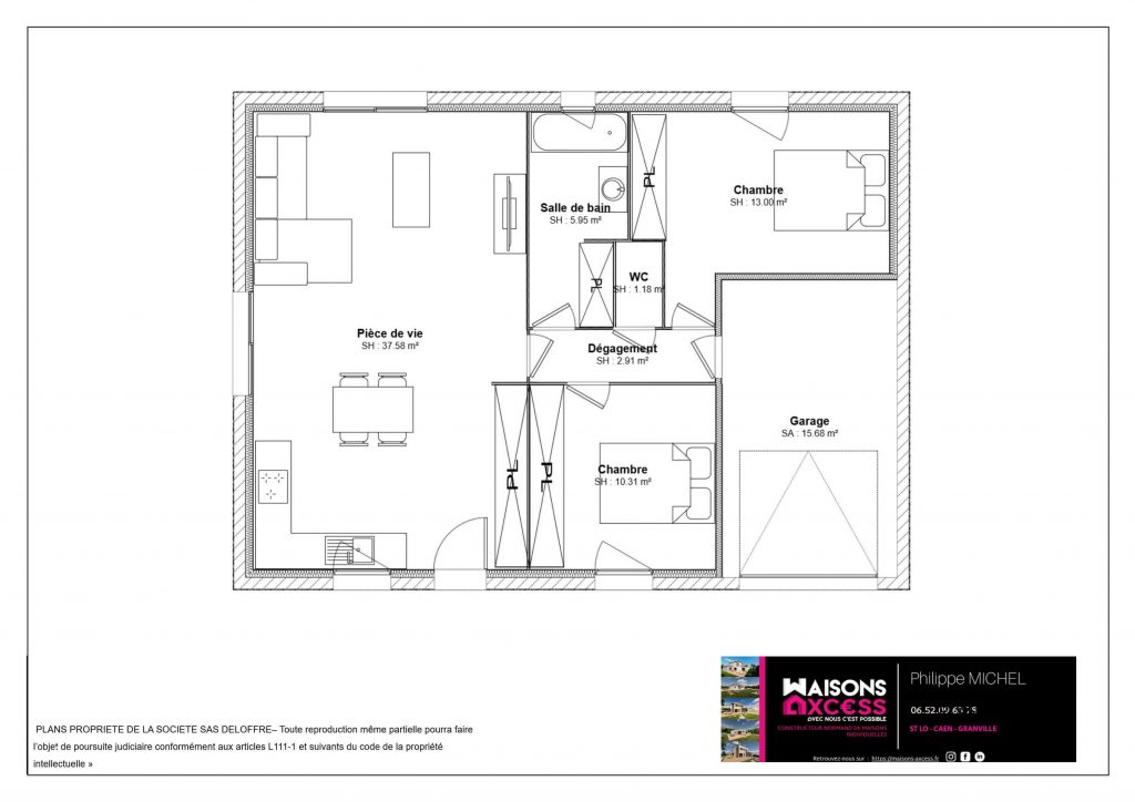
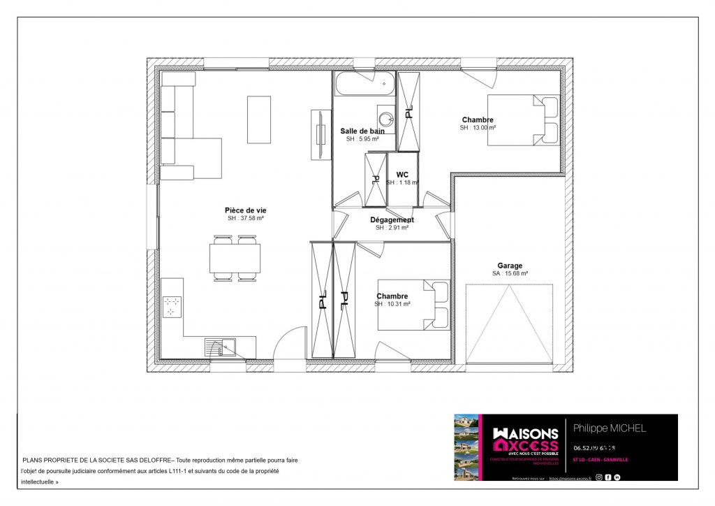
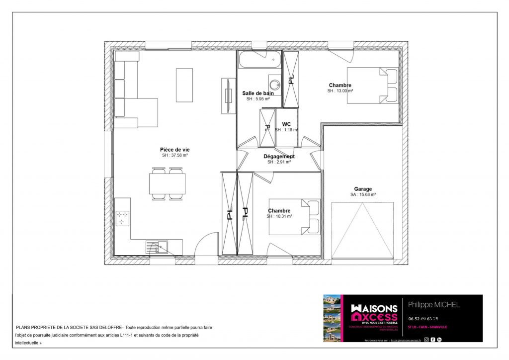
Cette maison contemporaine de plain-pied avec une couverture ardoise bénéficie d’une belle luminosité et d’un jardin et 489m²
Cette maison comprend au rez-de-chaussée, une cuisine ouverte, des WC séparés, une salle d’eau et 2 chambres spacieuses.
Cette maison dispose également d’un garage intégré.
Votre projet Maison + Terrain à partir de 241423€ (Hors frais)
Sous réserve de disponibilité de notre partenaire foncier.
Contactez moi au 06 52 09 63 78
Mail p.michel@maisons-axcess.com
Sous réserve de disponibilité, photos non contractuelles
Compris Assurances et garanties du constructeur (RC professionnelle, décennale, dommage ouvrage, garantie de remboursement de l’acompte, livraison à prix et délai convenu)
Nos agences vous accueillent dans le calvados à Caen, Lisieux et Vire. Dans la manche à Valognes, Saint-lô,
