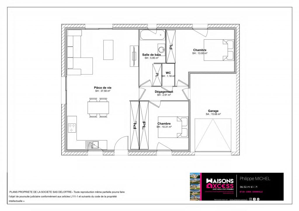
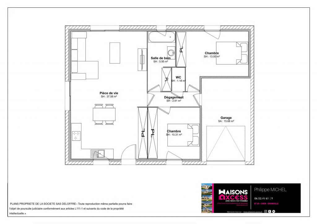
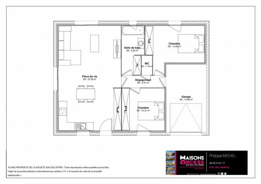
Jade 80 m²
Sur un terrain de 900 M²
Maison de plein pied, séjour salon avec cuisine ouverte.
2 chambres , sdb, wc, indépendant
Garage
Projet suivi par Philippe MICHEL 06 52 09 63 78
Isolation renforcer système de chauffage économique et performant
Projet éligible au prêt aidé de l’état (voir conditions en agence)
Nos maisons sont entièrement personnalisables.
N’hésitez pas à nous contacter pour vos projets sur d’autres communes
p.michel ;maisons-axcess
Sous réserve de disponibilité, photos non contractuelles
Compris Assurances et garanties du constructeur (RC professionnelle, décennale, dommage ouvrage, garantie de remboursement de l’acompte, livraison à prix et délai convenu)
Nos agences vous accueillent dans le calvados à Caen, Lisieux et Vire. Dans la manche à Valognes, Saint-lô,
Contactez-nous
