Projet de construction à GAVRAY SUR SIENNE 50450
Reference annonce LEMONNIER.
Le prix annoncé de 256530€ TTC comprend (terrain, frais de notaire, frais de raccordement et d’assainissement, maison, cellier, assurance Dommage Ouvrage, régalage et évacuation des terres)
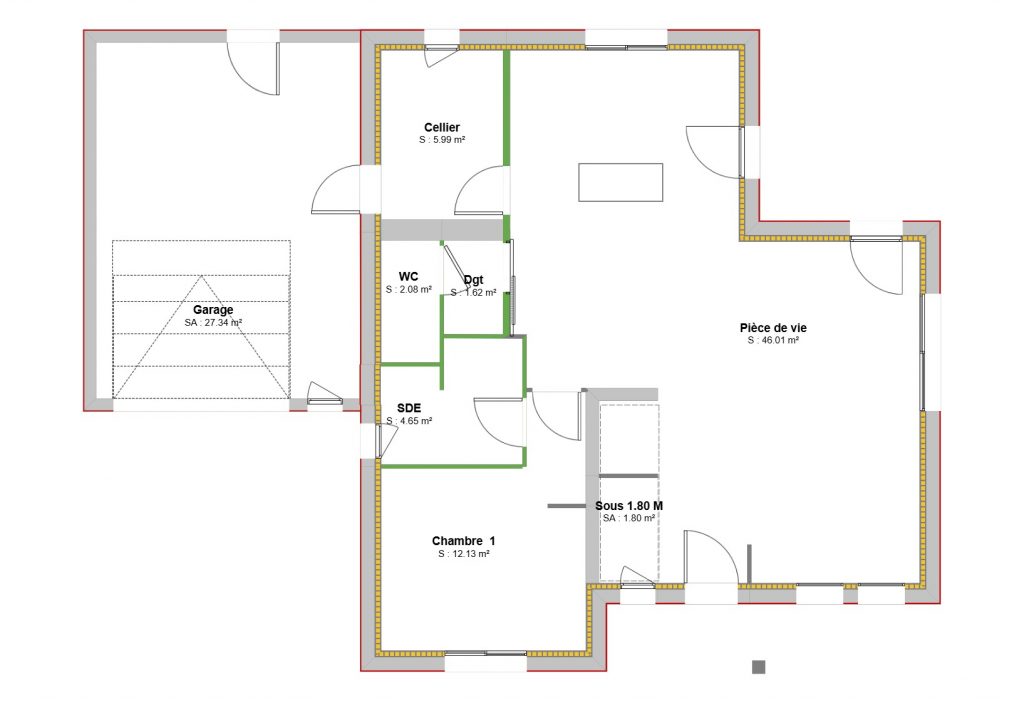
à bâtir Maison ETAGE 121M² Habitable sur un terrain de 400M²
Pièce de vie lumineuse de 46m². 4 chambres. Garage. Plan modifiable selon vos besoins Chauffage PAC AIR /AIR. Autre mode de chauffage possible (Plancher chauffant PAC Air Eau ou Poêle à Granules)
Avec vous, je dessine, personnalise et réalise le chiffrage de votre projet. Je trouve avec vous les meilleures solutions tout en respectant votre enveloppe financière. Etude gratuite.
Depuis 14 ans dans l’entreprise MAISONS AXCESS Je suis Reine LEMONNIER, j’ai le plaisir de mettre mon savoir-faire pour vous accompagner dans la réalisation de votre projet de construction Je suis à votre disposition pour vous rencontrer et définir avec vous votre maison
Vous pouvez me contacter pour un rendez-vous à votre domicile ou au bureau en utilisant ces coordonnés Tel 06 18 22 52 61 02 33 06 08 16 lemonniermaisonsaxcess@orange.fr
Bricoleur ou des connaissances dans le bâtiment, possibilité de réaliser cette maison en Hors d’eau Hors d’air
J’ai un fichier de terrains disponibles et des partenaires financiers à vous recommander.
Votre projet de construction dans la Manche, Calvados, Orne
Sous réserve de disponibilité, photos non contractuelles
Assurances et garanties du constructeur (RC professionnelle, décennale, dommage ouvrage, garantie de remboursement de l’acompte, livraison à prix et délai convenu)
Nos agences vous accueillent dans le calvados à Caen, Lisieux et Vire. Dans la manche à Valognes, Saint-lô,
