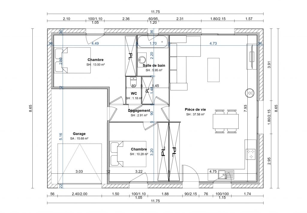
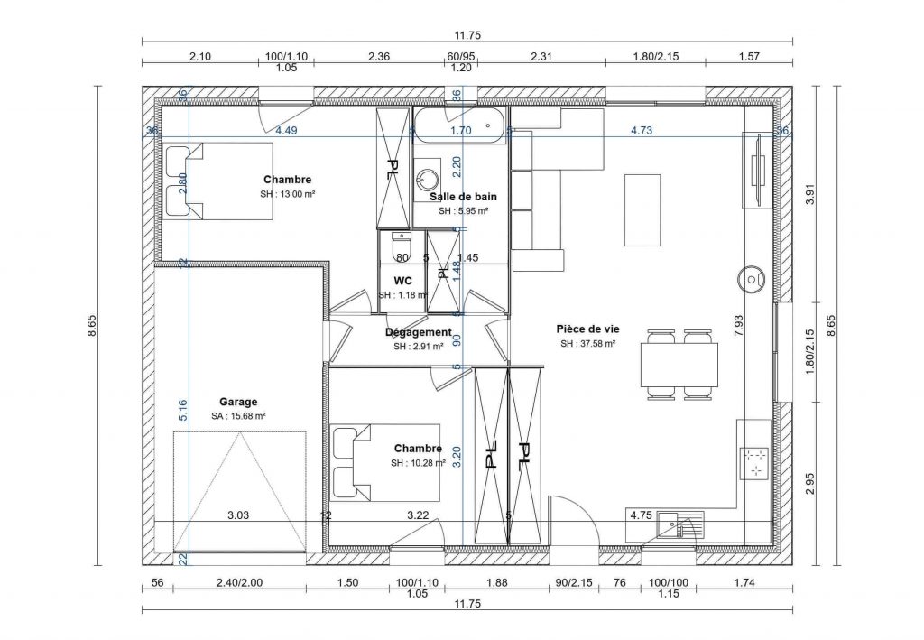
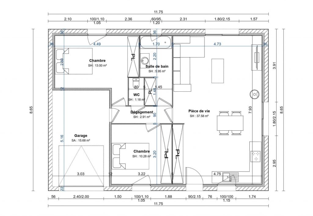
Maison de plain pied 70 m² à ( mn de la gare vers paris et caen.
Sejour salon avec 2 baies vitrées cuisine ouverte
2 chambres garage
Terrain 630 m² plat viabilisé tout à l’égout
Plan personnalisables
Sous réserve de disponibilité, photos non contractuelles
Compris Assurances et garanties du constructeur (RC professionnelle, décennale, dommage ouvrage, garantie de remboursement de l’acompte, livraison à prix et délai convenu)
Nos agences vous accueillent dans le calvados à Caen, Lisieux et Vire. Dans la manche à Valognes, Saint-lô,
Contactez-nous
