Maisons Axcess
Construisons ensemble votre avenir
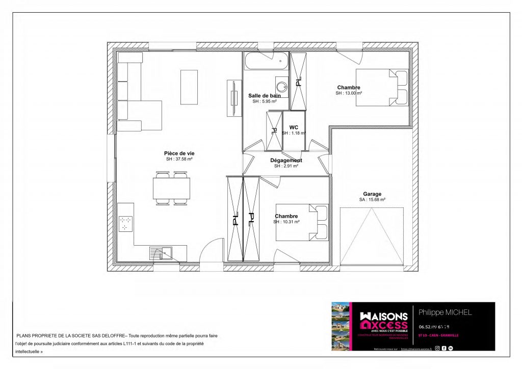
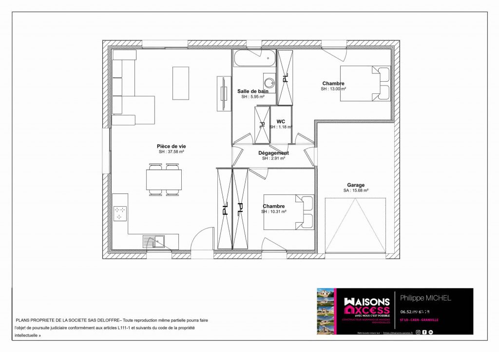
Maison de plain-pied moderne et personnalisable sur un terrain de 800 m²
- Séjour/salon spacieux avec cuisine ouverte
- 2 chambres confortables
- Salle de bains et WC indépendants
- Garage intégré
Les avantages
- Isolation renforcée pour un confort optimal
- Système de chauffage économique et performant
- Projet éligible au prêt aidé de l’État (voir conditions en agence)
- Plans entièrement personnalisables selon vos envies
Inclus dans le prix
Le prix comprend le terrain, la maison et tous les raccordements.
Flexibilité
Ce projet peut être réalisé sur d’autres communes. Nous pouvons également concevoir d’autres plans pour répondre parfaitement à vos besoins et à votre style de vie.
Contactez dès aujourd’hui Projet suivi par Philippe MICHEL 06 52 09 63 78 – p.michel@maisons-axcess
Maisons Axcess – 18 ans d’expérience au service de votre projet. Votre maison, votre style, votre commune.
Sous réserve de disponibilité, photos non contractuelles
Compris Assurances et garanties du constructeur (RC professionnelle, décennale, dommage ouvrage, garantie de remboursement de l’acompte, livraison à prix et délai convenu)
Nos agences vous accueillent dans le calvados à Caen, Lisieux et Vire. Dans la manche à Valognes, Saint-lô,
Contactez-nous
