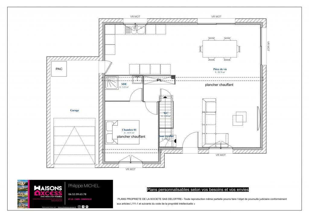
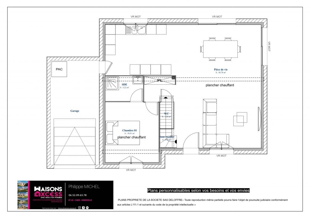
Maison de plus de 125 m² conforme à la re 2020.
Isolation renforcée chauffage pac air eau plancher chauffant.
Espace de vie env 50 M² 4 vastes chambres dont 1 au rdc
Projet éligible au prêt à taux zéro (Voir conditions en agence)
Maison personnalisable selon vos souhaits et vos envies
Nous disposons de nombreux terrain pour réaliser votre maison sur tout le département
p.michel »maisons-axcess.com
Sous réserve de disponibilité, photos non contractuelles
Compris Assurances et garanties du constructeur (RC professionnelle, décennale, dommage ouvrage, garantie de remboursement de l’acompte, livraison à prix et délai convenu)
Nos agences vous accueillent dans le calvados à Caen, Lisieux et Vire. Dans la manche à Valognes, Saint-lô,
Contactez-nous
