Sur un terrain de 400 M²
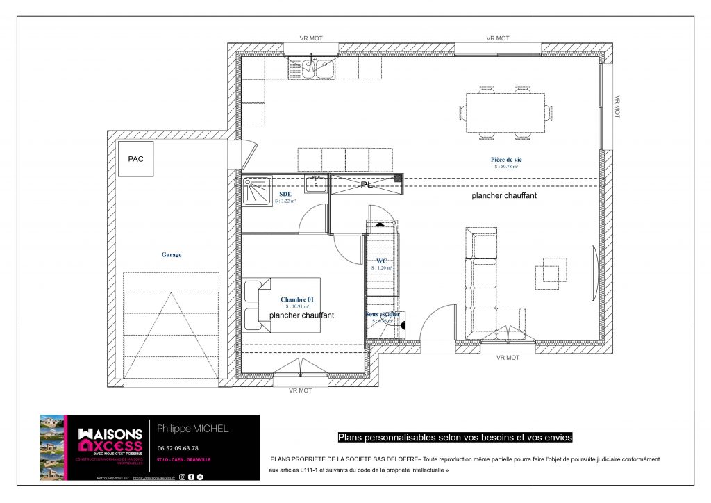
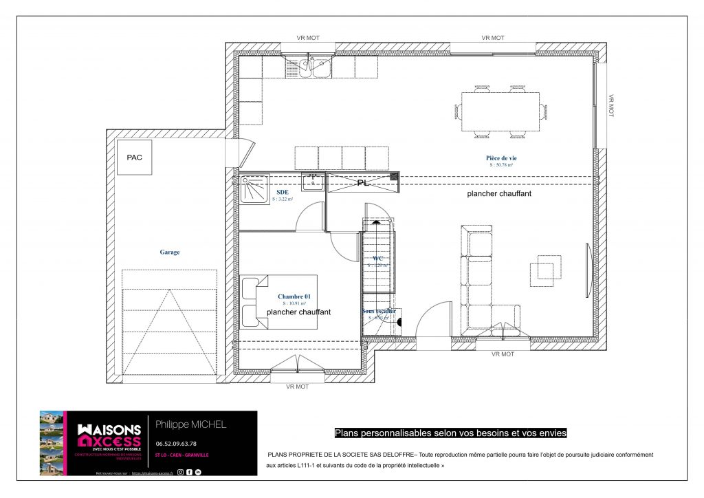
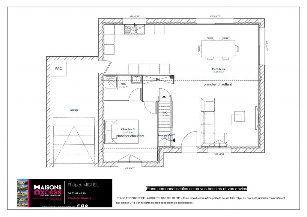
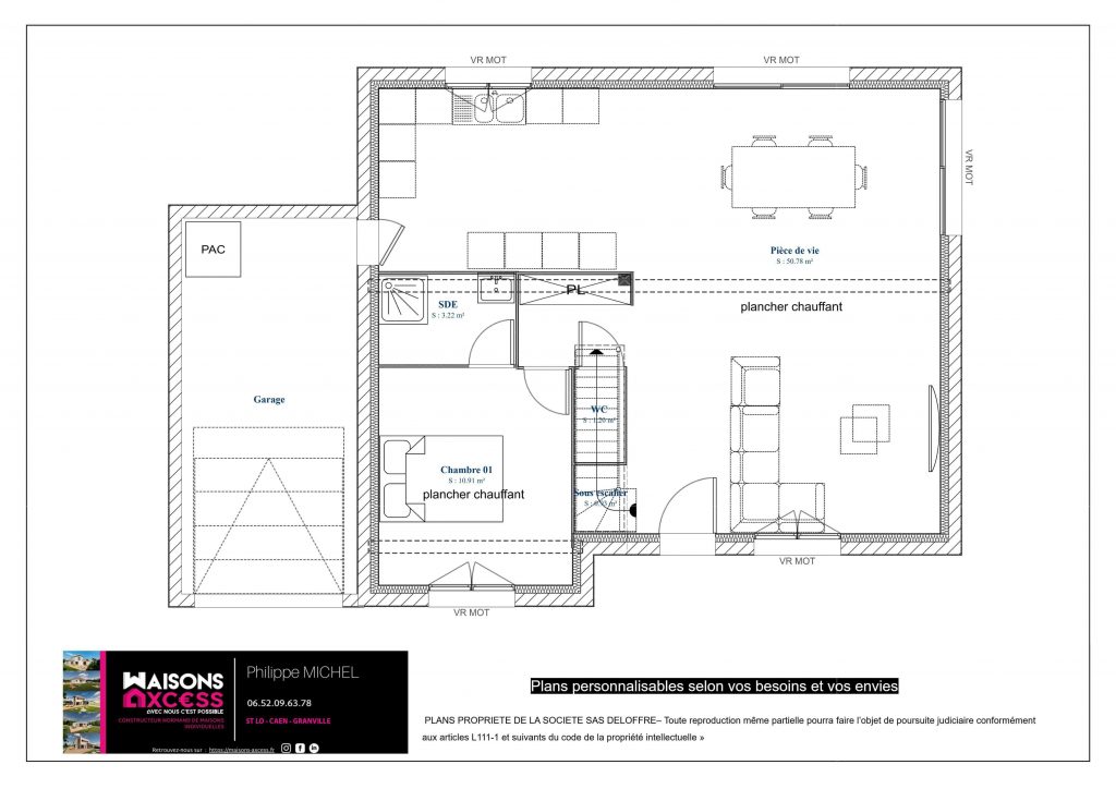
Maison contemporaine de plus de 125 m².
Séjour salon lumineux environ 50 m²,4 chambres dont 1 chambre au rdc avec sde.
A l’étage 3 grandes Chambres minimum 14 m² SDB
Garage accolé
Plancher chauffant
Plans personnalisables
Maison prête à décorer
Sous réserve de disponibilité, photos non contractuelles
Compris Assurances et garanties du constructeur (RC professionnelle, décennale, dommage ouvrage, garantie de remboursement de l’acompte, livraison à prix et délai convenu)
Nos agences vous accueillent dans le calvados à Caen, Lisieux et Vire. Dans la manche à Valognes, Saint-lô,
